6.6 基础设计


6.6.1 爆炸荷载作用下,基础应进行地基承载力、抗倾覆及抗滑移验算。设计时应采用外墙爆炸荷载、屋面爆炸荷载、屋面和楼面恒荷载、楼面活荷载同时组合的动力响应最大值。
6.6.2 爆炸荷载作用下,当采用天然地基或复合地基时,基础的设计应符合下列规定:
    1 地基土承载力验算时,地基土的允许承载力可取特征值的2倍。
    2 抗倾覆验算时,抗倾覆安全系数不应小于1.2,不计入楼面活荷载的影响。
    3 抗滑移验算时,抗滑移安全系数不应小于1.0。当利用基础的被动土压力增加抗滑移能力时,基础的被动土压力不应小于不平衡荷载的1.5倍,不平衡荷载取总动水平荷载减去摩擦阻力。
    4 混凝土基础与地基土间的摩擦系数宜按表6.6.2取值。
表6.6.2
6.6.3 爆炸荷载作用下,桩基础的设计应符合下列规定:
    1 桩的竖向承载力可取竖向极限承载力。
    2 桩的水平承载力可取水平极限承载力。利用基础的被动土压力与桩共同抗滑移时,基础的被动土压力不应小于不平衡荷载的1.5倍,不平衡荷载取总动水平荷载减去桩分担的水平力。
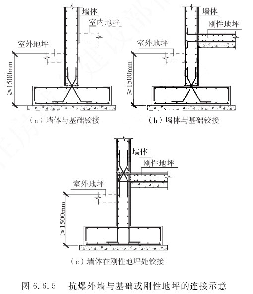
6.6.4 基础埋深不宜小于1.5m。
6.6.5 抗爆外墙与基础或刚性地坪的连接宜采用铰接形式(图6.6.5)。
图6.6.5)
6.6.6 独立基础、桩承台宜沿两个主轴方向设置联系梁。
6.6.7 基坑及室内地坪下回填土应分层压实,压实系数不应小于0.95。

目录导航