6.1 用火
6.1.1 设置在居住建筑内的厨房宜符合下列规定:
1 靠外墙设置;
2 与建筑内的其他部位采取防火分隔措施;
3 墙面采用不燃材料;
4 顶棚和屋面采用不燃或难燃材料。
6.1.2 用于炊事和采暖的灶台、烟道、烟囱、火炕等应采用不燃材料建造或制作。与可燃物体相邻部位的壁厚不应小于240mm。
烟囱穿过可燃或难燃屋顶时,排烟口应高出屋面不小于500mm,并应在顶棚至屋面层范围内采用不燃烧材料砌抹严密。
烟道直接在外墙上开设排烟口时,外墙应为不燃烧体且排烟口应突出外墙至少250mm。
6.1.3 烟囱穿过可燃保温层、防水层时,在其周围500mm范围内应采用不燃材料做隔热层,严禁在闷顶内开设烟囱清扫孔。
6.1.4 多层居住建筑内的浴室、卫生间和厨房的垂直排风管,应采取防回流措施或在支管上设置防火阀。
6.1.5 柴草、饲料等可燃物堆垛较多、耐火等级较低的连片建筑或靠近林区的村庄,其建筑的烟囱上应采取防止火星外逸的有效措施。
6.1.6 燃煤燃柴炉灶周围1.0m范围内不应堆放柴草等可燃物。
6.1.7 燃气灶具的设置应符合下列要求:
1 燃气灶具宜安装在有自然通风和自然采光的厨房内,并应与卧室分隔;
2 燃气灶具的灶面边缘和烤箱的侧壁距木质家具的净距离不应小于0.5m,或采取有效的防火隔热措施;
3 放置燃气灶具的灶台应采用不燃材料或加防火隔热板;
4 无自然通风的厨房,应选用带自动熄灭保护装置的燃气灶具,并应设置可燃气体探测报警器和与其连锁的自动切断阀和机械通风设施;
5 燃气灶具与燃气管道的连接胶管应采用耐油燃气专用胶管,长度不应大于2m,安装应牢固,中间不应有接头,且应定期更换。
6.1.8 既有厨房不满足6.1.1条的规定时,炉灶设置应符合下列要求:
1 与炉灶相邻的墙面应作不燃化处理,或与可燃材料墙壁的距离不小于1.0m;
2 灶台周围1.0m范围内应采用不燃地面或设置厚度不小于120mm的不燃烧材料隔热层;
3 炉灶正上方1.5m范围内不应有可燃物。
6.1.9 火炉、火炕(墙)、烟道应当定期检修、疏通。炉灶与火炕通过烟道相连通时,烟道部分应采用不燃材料。
6.1.10 明火使用完毕后应及时清理余火,余烬与炉灰等宜用水浇灭或处理后倒在安全地带。炉灰宜集中存放于室外相对封闭且避风的地方,应设置不燃材料围挡。
6.1.11 使用蜡烛、油灯、蚊香时,应放置在不燃材料的基座上,距周围可燃物的距离不应小于0.5m。
6.1.12 燃放烟花爆竹、吸烟、动用明火应当远离易燃易爆危险品存放地和柴草、饲草、农作物等可燃物堆放地。
6.1.13 五级及以上大风天气,不得在室外吸烟和动用明火。
6.1 用火
6.1.1 厨房作为用火频繁的场所,火灾危险性较大,一旦发生火灾,为将其危害限制在一个区域内,作出了本条规定。居住建筑内厨房设置的防火要求,如图6所示。
6.1.2 为防止烟囱、烟道、火炕等的辐射热或窜出的火焰、火星引燃附近可燃物,对其建造材料和与周围可燃物的距离作出了防火要求,如图7所示。


烟囱、烟道、火炕应选择不燃材料,一般在粘土内掺入适量的砂子,防止因高温引起开裂漏火。当与可燃物体的安全距离达不到要求时,应用石棉瓦、砖墙、金属板等不燃材料隔开。
6.1.3 在闷顶内开设烟囱清扫孔容易造成火星或高温烟气窜入闷顶,造成闷顶内的可燃物起火,应采取相应的措施如图7(d)所示。
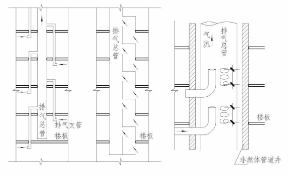
6.1.4 在火灾情况下,垂直排风管道能产生“烟囱”效应,为有效控制火灾的蔓延,应对排风管道采取必要的防止回流措施:增加各层垂直排风支管的高度,使各层排风支管穿越2层楼板;把排风竖管分成大小两个管道,总竖管直通屋面,小的排风支管分层与总竖管连通;将排风支管顺气流方向插入竖风道,且支管到支管出口的高度不小于600mm;在支管上安装止回阀。如图8所示。
6.1.5 为预防烟囱逸出火星造成火灾,可在烟囱上采取加防火帽等措施,以熄灭火星。如图9所示。
6.1.6 燃煤、燃柴草炉灶易飞溅火星或使灰烬跌落,柴草等可燃物距其较近易引发火灾,故做出本规定,如图10所示。同时居住建筑的炉灶不应设置在疏散出口附近。
6.1.7 本条规定了燃气灶具的设置要求。
燃气灶具要在通风良好的厨房中使用,应远离易燃物品,并要求放置在不易燃烧的物体上,如:水泥板、石板、铁板等。其连接软管不应有接头;软管与燃气管道、接头管、燃烧设备的连接处应采用压紧螺帽(锁母)或管卡固定。如图11所示。
6.1.8 为防止炉灶的明火引燃可燃物,对既有厨房不符合6.1.1的规定时,灶台周围的墙面、地面、隔热层等的防火要求作出本条规定,如图12所示。
6.1.9 火炉、火炕(墙)、烟道如果维修不及时,由于热应力的作用或地基下沉、变形,很容易出现裂缝,滋火而发生火灾。
6.1.10 目前我国还有许多地区的农民生活和取暖主要靠煤、柴草及农作物秸秆做燃料,用完后不及时清理余火,带火星的碳灰随处洒落、乱倒,极易引发火灾。所以从煤、柴炉灶扒出的炉灰,应放在炉坑内,如急需外倒,要用水将余火浇灭,以防余火燃着可燃物或“死灰”复燃,造成火灾。
6.1.11 根据测定,燃着的蜡烛火焰温度高达1400℃,煤油灯的灯头火焰温度高达800~1000℃,这样高的温度是很容易引起火灾的。为防止蜡烛点完时烧着可燃基座,规定蜡烛、蚊香应放在不燃材料的基座上,蜡烛、油灯、蚊香与可燃物应保持一定的距离,或采取必要的防护措施,以防引起火灾。
6.1.12 易燃易爆危险品存放地和柴草、饲草、农作物等可燃物堆放地容易引发火灾,发生火灾后扑救困难,因此,燃放烟花爆竹、吸烟、动用明火应当远离这些危险区域。
6.1.13 五级风称为劲风,风速8~10.7m/s,大风天一旦发生火灾,火势蔓延迅速,使扑火人员难以靠近。尤其是柴草垛火灾呈现出“跳跃式”扩展。凡遇五级以上大风天等高、强火险天气,不得在室外吸烟和动用明火,包括祭祀用火等。
1 靠外墙设置;
2 与建筑内的其他部位采取防火分隔措施;
3 墙面采用不燃材料;
4 顶棚和屋面采用不燃或难燃材料。
6.1.2 用于炊事和采暖的灶台、烟道、烟囱、火炕等应采用不燃材料建造或制作。与可燃物体相邻部位的壁厚不应小于240mm。
烟囱穿过可燃或难燃屋顶时,排烟口应高出屋面不小于500mm,并应在顶棚至屋面层范围内采用不燃烧材料砌抹严密。
烟道直接在外墙上开设排烟口时,外墙应为不燃烧体且排烟口应突出外墙至少250mm。
6.1.3 烟囱穿过可燃保温层、防水层时,在其周围500mm范围内应采用不燃材料做隔热层,严禁在闷顶内开设烟囱清扫孔。
6.1.4 多层居住建筑内的浴室、卫生间和厨房的垂直排风管,应采取防回流措施或在支管上设置防火阀。
6.1.5 柴草、饲料等可燃物堆垛较多、耐火等级较低的连片建筑或靠近林区的村庄,其建筑的烟囱上应采取防止火星外逸的有效措施。
6.1.6 燃煤燃柴炉灶周围1.0m范围内不应堆放柴草等可燃物。
6.1.7 燃气灶具的设置应符合下列要求:
1 燃气灶具宜安装在有自然通风和自然采光的厨房内,并应与卧室分隔;
2 燃气灶具的灶面边缘和烤箱的侧壁距木质家具的净距离不应小于0.5m,或采取有效的防火隔热措施;
3 放置燃气灶具的灶台应采用不燃材料或加防火隔热板;
4 无自然通风的厨房,应选用带自动熄灭保护装置的燃气灶具,并应设置可燃气体探测报警器和与其连锁的自动切断阀和机械通风设施;
5 燃气灶具与燃气管道的连接胶管应采用耐油燃气专用胶管,长度不应大于2m,安装应牢固,中间不应有接头,且应定期更换。
6.1.8 既有厨房不满足6.1.1条的规定时,炉灶设置应符合下列要求:
1 与炉灶相邻的墙面应作不燃化处理,或与可燃材料墙壁的距离不小于1.0m;
2 灶台周围1.0m范围内应采用不燃地面或设置厚度不小于120mm的不燃烧材料隔热层;
3 炉灶正上方1.5m范围内不应有可燃物。
6.1.9 火炉、火炕(墙)、烟道应当定期检修、疏通。炉灶与火炕通过烟道相连通时,烟道部分应采用不燃材料。
6.1.10 明火使用完毕后应及时清理余火,余烬与炉灰等宜用水浇灭或处理后倒在安全地带。炉灰宜集中存放于室外相对封闭且避风的地方,应设置不燃材料围挡。
6.1.11 使用蜡烛、油灯、蚊香时,应放置在不燃材料的基座上,距周围可燃物的距离不应小于0.5m。
6.1.12 燃放烟花爆竹、吸烟、动用明火应当远离易燃易爆危险品存放地和柴草、饲草、农作物等可燃物堆放地。
6.1.13 五级及以上大风天气,不得在室外吸烟和动用明火。
条文说明
6.1 用火
6.1.1 厨房作为用火频繁的场所,火灾危险性较大,一旦发生火灾,为将其危害限制在一个区域内,作出了本条规定。居住建筑内厨房设置的防火要求,如图6所示。
图6 居住建筑内厨房防火设置示意图
图7 烟囱、烟道防火设置示意图


6.1.3 在闷顶内开设烟囱清扫孔容易造成火星或高温烟气窜入闷顶,造成闷顶内的可燃物起火,应采取相应的措施如图7(d)所示。
6.1.4 在火灾情况下,垂直排风管道能产生“烟囱”效应,为有效控制火灾的蔓延,应对排风管道采取必要的防止回流措施:增加各层垂直排风支管的高度,使各层排风支管穿越2层楼板;把排风竖管分成大小两个管道,总竖管直通屋面,小的排风支管分层与总竖管连通;将排风支管顺气流方向插入竖风道,且支管到支管出口的高度不小于600mm;在支管上安装止回阀。如图8所示。
图8 排气管防回流措施示意图
图9 烟囱防止火星外逸措施示意图
图10 可燃物与炉灶间距示意图
燃气灶具要在通风良好的厨房中使用,应远离易燃物品,并要求放置在不易燃烧的物体上,如:水泥板、石板、铁板等。其连接软管不应有接头;软管与燃气管道、接头管、燃烧设备的连接处应采用压紧螺帽(锁母)或管卡固定。如图11所示。
图11 燃气灶具防火设置示意图
图12 既有厨房炉灶防火设置示意图
6.1.10 目前我国还有许多地区的农民生活和取暖主要靠煤、柴草及农作物秸秆做燃料,用完后不及时清理余火,带火星的碳灰随处洒落、乱倒,极易引发火灾。所以从煤、柴炉灶扒出的炉灰,应放在炉坑内,如急需外倒,要用水将余火浇灭,以防余火燃着可燃物或“死灰”复燃,造成火灾。
6.1.11 根据测定,燃着的蜡烛火焰温度高达1400℃,煤油灯的灯头火焰温度高达800~1000℃,这样高的温度是很容易引起火灾的。为防止蜡烛点完时烧着可燃基座,规定蜡烛、蚊香应放在不燃材料的基座上,蜡烛、油灯、蚊香与可燃物应保持一定的距离,或采取必要的防护措施,以防引起火灾。
6.1.12 易燃易爆危险品存放地和柴草、饲草、农作物等可燃物堆放地容易引发火灾,发生火灾后扑救困难,因此,燃放烟花爆竹、吸烟、动用明火应当远离这些危险区域。
6.1.13 五级风称为劲风,风速8~10.7m/s,大风天一旦发生火灾,火势蔓延迅速,使扑火人员难以靠近。尤其是柴草垛火灾呈现出“跳跃式”扩展。凡遇五级以上大风天等高、强火险天气,不得在室外吸烟和动用明火,包括祭祀用火等。