第九章 特殊建筑和场所
9.1 电影厅、法院审判厅等场所
9.1.1 电影厅、法院审判厅、报告厅、会议厅等为固定座位时,其厅室面积及相关消防设计应参照观众厅要求执行。设置在四层及四层以上的电影厅、法院审判厅、报告厅、会议厅、宴会厅等确有困难时,厅室面积可大于400㎡,在符合规范要求的同时,还应符合下列规定:
1 厅室应采用耐火极限不低于3.00h的防火隔墙、甲级防火门与其他部位分隔;
2 厅室内任一点至疏散门的直线距离不应超过15m;
3 该场所至少应设置1部独立的疏散楼梯或1个直通上人屋面、净宽度不小于2.0m的安全出口;
4 当设置自动喷水灭火系统时, 厅室内的喷头应采用快速响应喷头; 5 厅室应设置自然排烟设施或独立的机械排烟系统和补风系统; 6 当厅室建筑面积不大于600㎡,该厅室座位数不得超过300座;当厅室建筑面积大于600㎡,厅室座位数不得超过厅室面积的1/2且不得超过400座;
7 设置在四层及四层以上的酒店宴会厅,确有困难时,建筑面积不应大于900㎡,疏散人数按规范中宴会厅人员密度计算。如采用第3款设置直通上人屋面的安全出口时,安全出口净宽度不应小于3.0m。
〔说明〕修订条文,增加酒店宴会厅的相关规定。
9.1.2 设置在四层及四层以上的餐厅、员工食堂、无观众席的体育比赛用房(训练用房)等可在观众厅的基础上适当放宽厅室面积要求。
〔说明〕修订条文,酒店宴会厅的内容移至第9.1.1条。本条 “观众厅的基础上”适当放宽,是指可在600㎡的基础上按不超过50%控制。
9.2 儿童活动场所
9.2.1 《建筑防火通用规范》《建筑设计防火规范》和本《指南》中的“儿童活动场所”是指供12周岁及以下婴幼儿和少儿活动的场所,包括幼儿园、托儿所中供婴幼儿生活和活动的房间,设置在建筑内的儿童游乐厅、儿童乐园、儿童培训班、早教中心等儿童游乐、学习和培训等活动的场所。
〔说明〕根据《建筑防火通用规范》关于“儿童活动场所”的定义,修订本条内容。小学校的教学用房平面布置要求应符合现行国家标准《中小学校设计规范》GB 50099的规定,托儿所、幼儿园的婴幼儿用房的布置要求应符合现行国家标准《托儿所、幼儿园建筑设计标准》JGJ 39 的规定。
9.2.2 任一层或任一防火分区内的建筑总面积小于50 ㎡的儿童活动空间,可不考虑独立疏散和防火分隔。
9.2.3 当儿童活动场所设置在其他单、多层民用建筑内时,应设置不少于1个独立的安全出口或疏散楼梯,其疏散宽度不应少于该场所设计疏散总宽度的70%。
当儿童活动场所设置在符合本《指南》第1.5.3条第1~4款规定的地上附属部分时,允许按本条单、多层建筑内的规定执行。
〔说明〕调整部分内容。老年人照料设施的安全出口和疏散楼梯设置按现行国家标准《建筑防火通用规范》GB 55037、《建筑设计防火规范》GB 50016的规定执行。
9.3 菜市场
9.3.1 一、二级耐火等级菜市场的防火分区每层最大允许建筑面积,可按规范规定增加1.0倍,单层敞开式菜市场(四周敞开且满足自然排烟要求)的防火分区最大允许建筑面积不限,但应符合下列规定:
1 菜市场内设置百货等商店时,商店的总面积不应大于防火分区面积的20%且不应大于2000㎡,并应设置防火分隔措施和防火分区内的其他部位分隔;
2 商店成组布置的面积不大于500㎡,且单间商店面积不大于50㎡时,单间商店之间可不设置防火分隔措施;当商店成组布置的面积大于500㎡时,单间商店之间应设置防火分隔措施(不应采用防火卷帘替代); 3 当商店总面积大于2000㎡时,商店部分应与菜市场分开设置防火分区。
〔说明〕修订条文,明确菜市场内的百货等商店的规模和防火分隔要求。
9.3.2 单层敞开式菜市场的钢结构可不采取防火保护措施;单层菜市场总面积不超过防火分区每层最大允许建筑面积时(含本《指南》第9.3.1条允许增加的面积要求),可不设置自动灭火系统和火灾报警系统。
9.4 体育馆、游泳馆
9.4.1 体育场馆比赛大厅(含看台和场地)和观众休息厅可按一个防火分区设计,看台人员可通过观众休息厅疏散至安全出口。但应满足以下要求: 1 观众休息厅仅可用于人员通行和休息,观众休息厅应采用不燃、难燃材料装修,休息桌椅应为不燃材料,且不得影响人员疏散;
2 比赛大厅看台任一点至比赛大厅通至观众休息厅的疏散门距离不应超过37.5m;休息厅内任一点至安全出口的最大疏散距离不应超过40m; 3 休息厅与比赛大厅之间应采用耐火极限不低于2.00h的防火隔墙和甲级防火门分隔;
4 观众休息厅与相邻功能用房(卫生间和淋浴间除外)均应采用耐火极限不低于2.00h的防火隔墙、甲级防火门和防火卷帘分隔;
5 观众休息厅和比赛大厅应分别设置独立的排烟设施;泳池看台区和戏水池区在计算排烟量或自然排烟口开窗面积时,水区面积可不计入; 6 建筑面积大于2500㎡的体育馆,其休息厅应设置自动灭火系统,喷头应采用快速响应喷头;游泳馆的泳池上空可不设置自动灭火系统和火灾自动报警系统。
〔说明〕该防火分区的面积可适当放宽要求,可按不超单个防火分区面积要求的50%控制。体育场馆比赛大厅(含看台和场地)和观众休息厅确因结构形式和空间造型等原因无法分开划分防火分区时,应严格按本条规定设置防火分隔措施。
第2款,体育馆的疏散可按两级疏散方式,即37.5m(比赛大厅)+40m(休息厅),但须分别满足,不能简单相加成77.5m进行计算。
本条内容仅针对体育馆、游泳馆,相邻功能用房包含小卖部等小型商业服务功能,剧场建筑可参考执行。
9.4.2 游泳馆的比赛或训练部位的屋盖承重钢结构的防火可按照《体育建筑设计规范》JGJ 31-2003第8.1.6条第3款的规定不做防火保护。
9.5 商业服务网点及类似功能建筑
9.5.1 商业服务网点在符合规范要求的同时,疏散楼梯设置形式可不限,但还应做到以下几点:
1 商业服务网点的总高度(建筑层高之和)不应大于7.8m(对于坡屋顶建筑,建筑层高应计算至屋脊的高度);
2 商业服务网点的疏散楼梯宽度不应小于1.2m;
3 当商业服务网点设置封闭楼梯间时,封闭楼梯间在首层应直通室外,二层的疏散距离可算到楼梯间的门。
〔说明〕提高对底商网点采用坡屋顶时建筑高度计算的要求。
9.5.2 与商业服务网点类似功能的物业用房、居委会办公、小型诊所、变配电房、小区配套服务等用房,当符合《建筑设计防火规范》及本《指南》第9.5.1条关于商业服务网点要求时,其消防设计可以参照住宅建筑底部的商业服务网点的要求执行。
9.5.3 总高度(建筑层高之和)不超过7.8m且建筑面积不大于300㎡的小区配套的居家养老服务用房、儿童活动场所可以设置在住宅建筑的首层或首层及二层,其防火设计尚应符合规范有关老年人照料设施或儿童活动场所的规定。
〔说明〕老年人和儿童使用的独立疏散楼梯宽度可按住宅疏散楼梯的要求,踏步尺寸可按《民用建筑设计统一标准》GB 50352-2019执行。
9.5.4 教育培训机构、棋牌室用房符合《建筑设计防火规范》及本《指南》第9.5.1条关于商业服务网点要求的,可以参照商业服务网点的要求执行,但应符合下列规定:
1 教育培训机构、棋牌室用房设置在商业服务网点中且任一层建筑面积大于120㎡时,或当教育培训机构涉及儿童培训场所且任一层建筑面积大于50㎡时,该层应设置2个安全出口或疏散门;
2 疏散楼梯设置形式可不限,采用敞开楼梯时应满足房间内任一点至首层安全出口的疏散距离要求,楼梯按照梯段水平投影1.5倍计入疏散距离;
3 教育培训机构(除儿童活动场所外)、棋牌室用房设置在商业服务网点中时,当该建筑(群)设有自动喷水灭火系统时应增设自动喷水灭火系统,当该建筑(群)未设自动喷水灭火系统时,应设置自动喷水灭火局部应用系统,其保护区的总建筑面积不应超过1000㎡,从消火栓系统接管时消火栓系统的流量应能满足局部应用系统的设计流量。
〔说明〕修订部分内容。
9.5.5 如有部分商户拆除商业服务网点用房的分隔墙(造成单个商铺建筑面积大于300㎡),引起建筑类别改变,该建筑应严格按照《建筑设计防火规范》关于多种功能组合的建筑来定性,适用相关规范条文。
〔说明〕本条要求特别针对消防车道和消防登高操作场地应重新按照建筑定性进行设计、审查、验收。
9.5.6 下列建筑可参照商业服务网点的要求进行设计,设置在非住宅建筑底部的商店参照住宅建筑底部的商业服务网点的要求执行时,其消防设施仍应按整体建筑定性和要求进行设计:
1 独立建造的不超过2层的商店建筑,符合商业服务网点要求的,可以参照住宅建筑底部的商业服务网点的要求执行;
2 设置在非住宅建筑首层及二层的全部商店符合商业服务网点要求,可以参照住宅建筑底部的商业服务网点的要求执行;
3 设置在非住宅建筑首层及二层的部分商店符合商业服务网点要求且与首层、二层其他功能之间采用不开设门窗洞口的防火墙分隔的商店,可以参照住宅建筑底部的商业服务网点的要求执行。
9.5.7 多个符合《建筑设计防火规范》第5.5.8条要求可设1部疏散楼梯的小型商业用房组合建造,当不符合《建筑设计防火规范》及本《指南》关于商业服务网点要求时,其消防设计应按整体建筑的要求执行。
〔说明〕明确底商或多个小商铺的组合建造的做法不可随意扩大适用范围。
9.6 消防控制室
9.6.1 新建的消防控制室宜设置在地上一层靠外墙部位或贴临下沉式广场、庭院等室外开敞空间。消防控制室净面积不应小于10㎡,每人使用面积不应小于4㎡。
〔说明〕消控室贴临下沉庭院应满足采光通风要求,庭院内宜设置直通地面的台阶或楼梯;下沉庭院尺寸可按不小于本《指南》第2.3.6条的规定控制。
9.6.2 为确保在机械应急启动时,消防水泵在报警后5.0min内正常工作,消防控制室与消防水泵房的步行距离不宜超过180m。
〔说明〕根据《消防给水及消火栓系统技术规范》GB 50974-2014第11.0.12条,增加条文。
9.7 其他特殊建筑和场所
9.7.1 “有顶步行街”(含步行街首层地面、二层及以上连廊、回廊区域,以下简称“步行街”)在符合规范要求的同时,还应做到以下几点: 1 “步行街”首层与地下层之间不应设置中庭、自动扶梯等上下连通的开口;首层地面至顶棚下檐的净高不应超过24m;
2 与“步行街”贴邻超过300㎡的商业用房,与“有顶步行街”之间应采取防火分隔措施,连通“步行街”的单个开口部位宽度不应大于9m,应设置与“步行街”独立的安全出口和疏散楼梯,不能利用“步行街”进行疏散,疏散距离应按大开间商业考虑;不超过300㎡的商业用房任一点至房间疏散门的距离应符合《建筑设计防火规范》第5.5.17条第3款的规定;
3 当建筑局部突出物或相邻建筑的外墙高于“步行街”顶棚部分采用防火墙和耐火极限不低于1.00h的屋面板时,“步行街”顶棚与上述外墙距离不限;当上述外墙高于“步行街”顶棚部分设置门窗洞口时,“步行街”顶棚与上述外墙距离不小于6m,排烟口与上述外墙距离不小于9m;
4 “步行街”(含两端楼板和屋顶)各层开口应上下对应并均匀布置,楼板开口最狭处宽度不应小于9m(局部自动扶梯可除外);连廊宽度不应大于6m。“步行街”应按商业营业厅要求计算疏散人数;
5 “步行街”的长度不应超过300m;“步行街”的长度按“步行街”中心线计算;“步行街地面面积”是指“步行街”与两侧商铺外墙的分隔线以内的区域;
6 地上二层及以上层回廊、连廊部分的人员疏散可直接(或利用前室)通至疏散楼梯;疏散楼梯在首层可利用扩大前室或扩大楼梯间(扩大前室或扩大楼梯间与其他功能用房之间应采用耐火极限不低于2.00h且不开设门窗洞口的隔墙分隔)通至“步行街”,且疏散楼梯(从梯段踏步前缘不超过梯段宽度的位置起算)至“步行街”的距离不得超过15m;
7 “步行街”首层地面及各层连廊、回廊可利用“步行街”的自然排烟窗进行排烟,与“步行街”相邻的商业用房应设置独立的排烟设施;各层“步行街”的回廊、连廊应设置自动喷水灭火系统和火灾自动报警系统;“步行街”内应设置室内消火栓。
9.7.2 对于总建筑面积10万平方米及以上(不包括住宅、写字楼部分及地下车库的建筑面积)集购物、旅店、展览、餐饮、文娱、交通枢纽等两种或两种以上功能于一体的超大城市综合体,尚应符合以下规定:
1 餐饮场所食品加工区的明火部位应靠外墙设置,且不得设置在地下室(靠下沉式广场外墙设置除外),并应与其他部位进行防火分隔; 2 商业营业厅每层的附属库房应采用耐火极限不低于3.00h的防火隔墙和甲级防火门与其他部位进行分隔;
3 当采用自动排烟窗时,自动排烟窗的功能、性能及选用应符合《防排烟标准》和《建筑通风和排烟系统用防火阀门》GB 15930-2024的相关规定。
〔说明〕调整部分内容。
9.7.3 排屋、别墅及其他住宅建筑的户内楼梯可采用敞开楼梯,该楼梯地下与地上部分在首层可不作防火分隔。但应满足以下要求:
1 排屋、别墅直通室外的安全出口应设置在离该楼梯小于等于15m处;
2 排屋、别墅户内任一点到室外出口的距离不应超过30m,其他住宅户内任一点到直通疏散走道的户门的距离应符合《建筑设计防火规范》第5.5.29条第3款的规定,其中楼梯疏散距离按其水平投影1.5倍计算; 3 住宅户内的地下室部分可利用开向为住宅服务的地下车库防火分区的甲级防火门进行疏散,但该地下车库防火分区应满足2个安全出口,且不得利用住宅户内疏散;户内地下室部分任一点至该甲级防火门或户内楼梯口(从梯段踏步前缘不超过梯段宽度的位置起算)的疏散距离不应大于15m;
4 户内楼梯的宽度可按《住宅设计规范》GB 50096关于套内楼梯的要求执行。
〔说明〕新增第3款,明确住宅户内的地下室部分疏散要求。
9.7.4 汽车4S店整体应按照公共建筑进行消防设计,车辆销售、维修和停放区等可组合或贴邻建造,但应符合以下规定:
1 各功能区域之间应采取可靠的防火分隔措施;两侧的门、窗、洞口最近边缘之间的实体墙(宽度)应不小于4m;
2 车辆销售区的防火设计应按照商业营业厅的要求,车辆维修区和停放区应分别按照《汽车库、修车库、停车场设计防火规范》中有关修车库和汽车库的要求设计;
3 车辆销售区、维修区的安全出口应独立设置。
〔说明〕加强了对防火分隔的要求。
9.7.5 建筑内可设置多间符合《建筑防火通用规范》第4.1.5条第2款规定的储油间;多个储油间可服务于同一发电机间的1台或多台柴油发电机,但各储油间至柴油发电机的供油管道在进入发电机间之前不应相互连通。
〔说明〕新增条文。明确柴油发电机房设置多间储油间时的相关要求。
9.7.6 电竞酒店与建筑的其他功能用房之间应采取防火分隔措施,并应满足:每个房间人数不应大于6人,每个房间应采取防火分隔措施,应设置火灾自动报警系统和自动喷水灭火系统。
〔说明〕新增条文,明确电竞酒店与其他功能用房之间的防火分隔及消防技术要求。
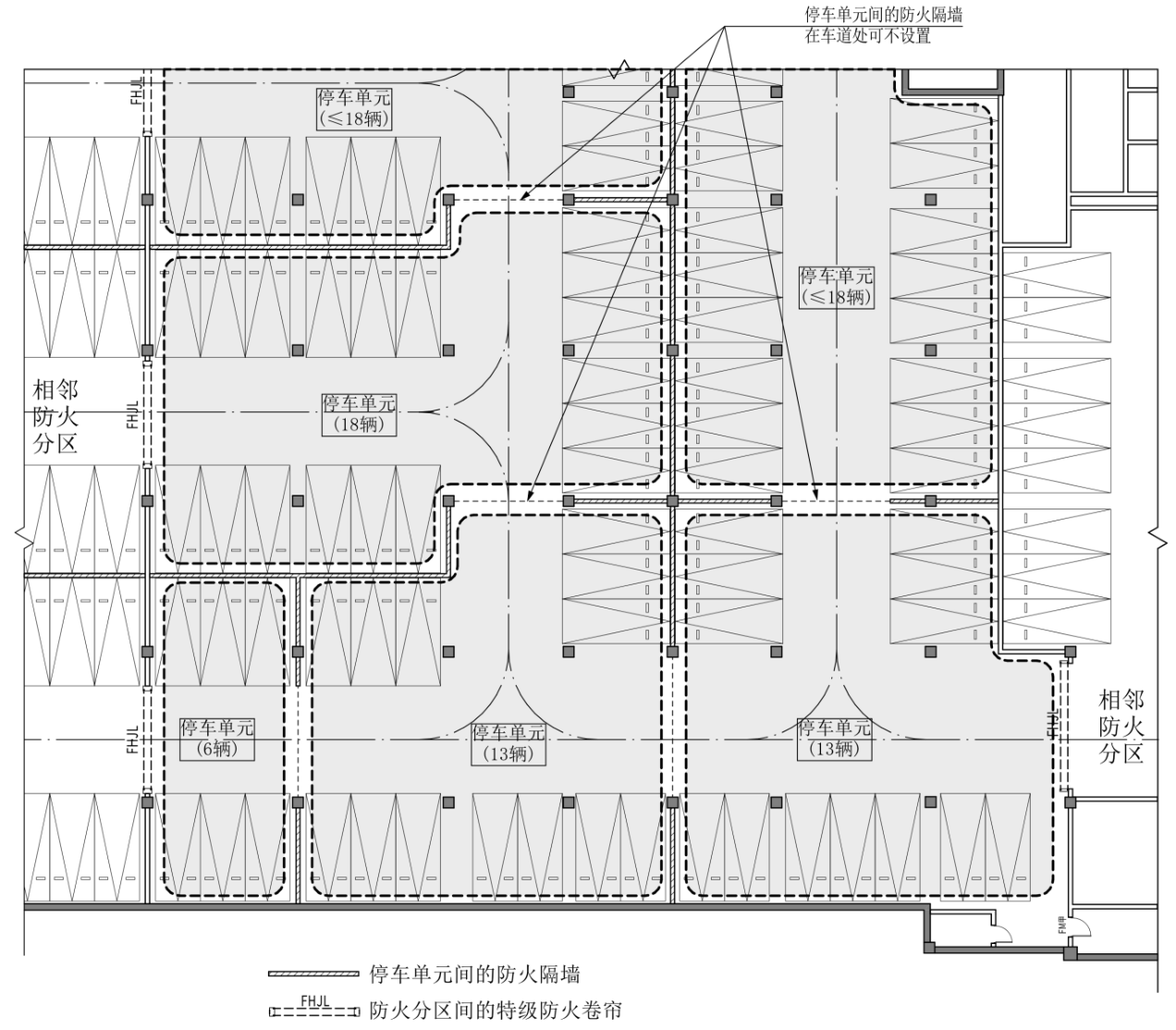
9.7.7 在汽车库(不包括中型车、大型车汽车库)内设置或预留电动汽车充电设施时,宜在每个防火分区内集中布置,且设置或预留电动汽车充电设施的区域应划分停车单元。停车单元应符合下列规定:(附图9.7.7) 1 每个停车单元的停车数量不宜大于12辆,不应大于18辆(以标准小型车为当量计算);行车道本身不可作为停车单元划分边界;
2 除行车道外,相邻两个停车单元之间、停车单元与其他停车位之间应采用耐火极限不低于2.00h的防火隔墙,隔墙高度不应小于1.8m; 3 机械式停车库内不宜设置充电设施,确需设置时,应采取可靠的防护措施;
4 停车区域顶部应至少设置两只感烟火灾探测器,每个停车位上部应至少设置一个水喷淋头。

附图9.7.7 停车单元的设置
〔说明〕新增条文。明确汽车库内设置或预留电动汽车充电设施时的区域划分和防火分隔的要求。
需要注意的是,新能源汽车的火灾并不仅限于充电阶段,建议有可能停放电动汽车的汽车库都按划分停车单元进行消防设计。
9.7.8 在工业用地上建设的科研、软件生产等类似功能的工业厂房,其消防设计应符合下列规定:
1 项目总平面设计、防火间距等应按照规范有关丙类厂房的规定从严执行;
2 项目建筑单体(含改造、装修)的消防设计应根据其相应实际使用功能(如办公建筑等)按照规范有关公共建筑的规定执行;
3 建筑内可设置企业自用的厨房和员工餐厅,并应符合下列规定: (1)厨房操作间应布置在24m以下,贴临外墙或下沉庭院、下沉广场设置,并应设置可开启外窗;
(2)厨房区域顶板及底板结构楼板的耐火极限不应小于2.00h;厨房操作间与其他区域之间应采用耐火极限不低于3.00h的防火隔墙,确需连通时,应设置甲级防火门;
(3)厨房和员工餐厅应设置至少一个独立的安全出口;
(4)厨房操作间的排油烟罩及烹饪部位应设置火灾自动灭火装置; 4 当按本条第3款设置的厨房使用燃气时,尚应符合下列规定: (1)厨房和员工餐厅设置的独立安全出口不应与上下层的生产性用房共用;
(2)燃气立管应沿建筑外墙外侧敷设,其对应的厨房外墙位置应设置不燃烧体外墙,且燃气立管与周边门窗洞口距离不应小于1.0m;
(3)厨房操作间可开启外窗的面积不应小于其地面面积的5%; (4)厨房操作间的燃气管道上应设置与自动灭火装置联动的自动切断装置;
(5)燃气厨房应设置机械事故排风系统,联动气体探测报警装置启闭。事故排风的排风换气次数不应小于12次/h。
〔说明〕新增条文。《建筑设计防火规范》术语中关于裙房的定义,适用于工业建筑。对于本条所指的工业厂房的消防设计按照现行国家标准《建筑防火通用规范》GB 55037、《建筑设计防火规范》GB 50016的民用建筑从严考虑时,可按照民用建筑裙房的相关规定执行,但总平面设计、消防间距等仍应按照本条第1款的规定执行。
工业厂房是否属于本条的“类似功能”,需县(市、区)级政府相关主管部门认定。
厨房区域的通风和泄压应满足国家标准对于燃气厨房的相关要求。本条中的厨房操作间主要指副食加工间,不包括与副食加工间采用耐火极限不低于2.00h的防火隔墙和乙级防火门分隔开的粗加工、清洗、储藏等房间。
9.7.9 电动自行车锂电池服务网点(含电池健康评估、暂存服务和回收服务)宜独立建造,并应符合下列规定:
1 总建筑面积不应大于300㎡;当建筑面积大于200㎡时安全出口数量不应少于2个;
2 应参照乙类仓库控制其与其他建筑的防火间距;
3 建筑的耐火等级不应低于二级;服务网点内部的各功能区域之间应设置耐火极限不低于3.00h的防火隔墙,隔墙上设置门扇时应为甲级防火门;内部装修应采用不燃材料;应设置泄压设施,泄压设施的设置应避开人员密集场所和主要交通道路;
4 应设置室外和室内消火栓系统;设置室内消火栓确有困难时,应配置消防软管卷盘或轻便消防水龙;建筑物灭火器应按严重危险级配置; 5 应设置包含CO探测器的火灾自动报警系统、消防应急照明及疏散指示系统;照明灯具、开关、电源插座应采用防爆型产品,同时应设置可燃气体探测报警装置;
6 应设置平时通风系统和消防排烟系统,且应优先采用自然通风和自然排烟系统。当采用自然通风(自然排烟)时,自然通风(自然排烟)窗或开口的有效面积不应小于地面面积的3%;当采用机械通风时,其换气次数不应小于6次/h,且排风机应采用防爆型风机;当采用机械排烟时,机械排烟量应按不小于90 m3/(h·m2)计算,且不小于15000 m3/h(当房间建筑面积小于或等于100㎡时,其计算排烟量不小于7200m3/h)。
当独立建造确有困难时,电动自行车锂电池服务网点可附设在一、二级耐火等级的其他单、多层建筑以及满足本《指南》第1.5.3条第1~4款要求时的高层建筑附属部分内,但应符合下列规定:
1 不得贴临老年人照料设施、儿童活动场所、中小学校、歌舞娱乐放映游艺场所、医疗建筑、居住建筑;
2 总建筑面积不应大于50㎡;应位于建筑首层并应设置独立安全出口,门窗应直接向室外开启,且不应有通向楼梯间及前室的门或出口; 3 与其他功能场所之间应采用耐火极限不低于4.00h的防火隔墙和2.00h的不燃性楼板分隔,隔墙和楼板上不应开设门、窗、洞口;服务网点内部的各功能区域之间应设置耐火极限不低于3.00h的防火隔墙,隔墙上设置门扇时应为甲级防火门;内部装修应采用不燃材料;应设置泄压设施,泄压设施的设置应避开人员密集场所和主要交通道路;
4 应设置室外消火栓系统,并根据所在建筑的消防要求设置室内消火栓和自动灭火系统;不设置室内消火栓系统时,应配置消防软管卷盘或轻便消防水龙;灭火器应按严重危险级配置;
5 本条前述独立建造时的第5~6款规定。
〔说明〕新增条文。明确电动自行车锂电池服务网点的消防设计技术要求。
- 上一节:第八章 热能动力
- 下一节:附录A 本次修订时删除的《浙江省消防难点问题》